Bredalsholmen har utarbeidet en teknisk-historisk rapport om Erkna. Den omhandler fartøyets konstruksjon og ombygginger, i lys av båtens samfunnsmessige kontekst. Rapporten vil kunne brukes som en referanse i arbeid med restaurering.
MK Erkna er i dag vernet av Riksantikvaren. Fartøyet har en lang historie.
Erkna ble bygget i en tid da den norske fiskeflåten var i sterk vekst. Ikke bare ble fiskeflåten større, den ble også modernisert. Sunnmøre hadde flest fiskedampskip i landet, og Erkna var dermed på mange måter typisk for sin samtid da hun ble bygget i Ålesund i 1907. Byggingen fant sted på Aalesunds mekaniske Værksted for rederiet Mogstad & Co. Erkna var søsterskipet til DS Arne, og fartøyene fikk henholdsvis byggenumrene 16 og 15.

Byggetegning, Baad No 15 & 16. Datert 11-6-07. Tegning utlånt av Atle Remøy.
Erkna ble bygget av stål, og var 73,1 fot lang, 16,5 fot bred, 7,9 fot dyp. Bruttodrektigheten var på 58,97 tonn, og nettodrektigheten på 11.12 tonn. Dampmaskinen var på 18 nominelle hestekrefter, eller 95 indikerte, og det var én dampkjele.
De nybygde båtene ble benyttet til havfiske. Erkna og Arne fikk en ny eier i Oscar Larsen (Ålesund) i 1916. Båtene ble snart involvert i håkjerringfisket under første verdenskrig, da behovet for fett var stort. Håkjerringen, en hai på opptil åtte meter med svært oljerik lever, ble tatt med line. På våren var håkjerringen å finne langs Finnmarkskysten, men senere trakk den nordover.
Etter krigen ble det vanskelige økonomiske tider for fiskerne langs kysten. Erkna måtte selges i 1926, og skilte denne gangen lag med søsterskipet. Lauritz L. Molværsmyr i Langevåg kjøpte Erkna og benyttet den til fiske, blant annet på sild, med snurpenot. Molværsmyr fikk etter hvert også problemer med å få finansene til å gå opp. Mathias Myklebust (Fosnavåg) overtok Erkna i 1939. Båten lå i opplag de siste årene, og var rustet og slitt. På dette viset var Erkna kanskje stadig typisk for fiskedampskipene hun representerte. Ifølge avisen Fylkestidende for Sogn og Fjordane var gjennomsnittsalderen for fiskedampskipsflåten i 1938 "avskrekkende høi". Avisen understreket at flåten i stor utstrekning hadde:
"gjennemgått fornyelse, forlengelse og utbedring i årenes løp, så de stort sett er tidsmessige. Det er allikevel innlysende at en fornyelse av flåten efter hvert vil bli påtrengende nødvendig, hvis landets firskerinæring skal holdes oppe som hittil. Det er almindelig kjent at fiskedampbåter under 120 tonn er uøkonomiske og lite egnet til havfiske. Båter under denne størrelse kan med motor som fremdriftsmiddel dog være meget hensiktsmessige."
Erkna ble nå bygget om, og utrustet med en ny motor av merket Union, på 60 effektive hestekrefter. Maskinrommet ble gjort betraktelig mindre enn før, og lasterommet i forskipet ble bygget større. En ny nedgangskappe ble satt opp forut, og dekksbygget lengre akter ble bygget om, med nytt styrehus og båtdekk.
Da tyskerne invaderte Norge i april 1940 lå Erkna fremdeles på slipp, ved Hatlø Verksted i Ulsteinvik. Verkstedet var bekymret for at båten var et opplagt mål for tyske bombefly. En del hudplater var blitt tatt ut, og det tok sin tid før det var mulig å sjøsette fartøyet. Den tyske marinen rekvirerte snart Erkna til fraktefart med transport av ferskfisk langs kysten. På høsten 1941 fikk eieren, Myklebust, et rekommandert brev fra havnekapteinen i Ålesund. Myklebust åpnet ikke brevet men informerte medlemmer av hjemmefronten om at han reiste til Trondheim. Mens han var bortreist kunne Erkna "stjeles" og brukes til englandsfart.
Etter planen skulle opp mot hundre mennesker reise med Erkna. På grunn av stort politioppbud i sammenheng med en rømming fra fengselet i Ålesund var det likevel flere som ikke kom seg av sted. Seksti mennesker kom om bord. Ingen andre båter tok like mange rømlinger over til Shetland på en og samme tur i løpet av krigen. Erkna brukte bare 26 timer over til Shetland. De reisende var heldige, for de kom seg av sted midt mellom to stormer. Da de nærmet seg Shetland var båten nær ved å treffe to drivminer, men det gikk bra til slutt. Mot slutten av året var Erkna på to nye turer til Norge. Bård Grotle var skipper. Erkna tok over for et annet fartøy og seilte til Bremanger 27. november. På grunn av forsinkelser før Erkna kom av gårde var det ingen å hente da de først kom frem. I løpet av desember seilte båten til Træna på Helgelandskysten. Fire Lingefolk kom seg i land med våpen og utstyr.
Det var ingen andre stålfartøyer som Erkna ved Shetlandsbasen, og fartøyet ble regnet for lett gjenkjennelig. Derfor ble det bestemt at det ikke lenger skulle brukes i trafikken til og fra Norge. Erkna ble heller brukt som travaljebåt og fraktet mannskapet fra Greenock-basen ved Glasgow til krigsskipene utenfor byen.
Etter krigen, på sommeren 1946, hentet Myklebust båten sin tilbake til Norge. Både rorhus og dekk hadde nå flere kulehull. Erkna ble nå pusset opp og bygget noe om. Dekkshus ble flyttet akterover, og båtdekket ble bygget om, med åpne ganger under.
Erkna ble på nytt brukt til både kyst- og havfiske, og fraktet sild og annen fisk. Fra oktober til mars 1970 fikk Erkna en ny eier i Anton K. Reite (Flusund).

Erkna en gang etter 1948 og før 1965. Foto utlånt av Anton Sævik.
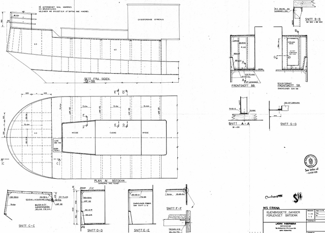
I løpet av både '50-, '60-, og '70-tallet gjennomgikk Erkna flere ombygginger og tilpasninger. Gangene under båtdekket, rundt casing, ble endret idet de igjen ble mer lukket. Maskinen ble byttet ut med en ny Union motor på 122 ihk. Også denne ble senere byttet ut med en Caterpillar motor på 290 hk. Et nytt sildeskott ble satt opp i lasterommet for å sikre at lasten ikke skulle kunne forskyve seg.

Erkna i Lerwick havn, Shetland 11. juni 1966. Fotograf: J. A. Hughson. Foto utlånt av Shetland museum and archives.
Alfred Remøy i Fosnavåg kjøpte Erkna i 1970. Inntil 1978 ble Erkna seilt til Orknøyene og Hebridene, først og fremst til Stornoway for sildesalting på høsten og vinteren. Det ble kjøpt sild på auksjon som ble saltet i tønner og plassert i lasterommet. Deretter dro Erkna over Nordsjøen fullastet med salt- og kryddersild for salg til Årsether i Ålesund, som solgte videre hovedsakelig til Sverige. Remøy drev brugdefangst med Erkna, og skulle etter hvert også benytte båten til håbrann- og hvalfangst. Det kom til å medføre større ombygginger. Det ble bygget et bakkdekk i baugen, og båtdekket ble forlenget akter for å gjøre plass til en harpunkanon. Mellom harpunkanonen i baugen og styrehuset ble det lagt en jagerbro. Det ble laget en port i skansekledningen på styrbord side, og en ny mast i stål forut fikk utkikkstønne. Den akterste masten hade ikke lenger bom.

Tegninger av bakk og hekk, 1978. Kilde: Sjøfartsdirektoratet.

Erkna som hvalbåt. Foto utlånt av Anton Sævik.
Perioden fartøyet var i drift som hvalbåt ble forholdsmessig kort. Med reduksjon i hvalfangsten ble det etter hvert vanskeligere for eierne å holde driften av Erkna i gang. Utviklingen av hvalfangstnæringen var derfor avgjørende for at det i 1984 ble bestemt at fartøyet skulle kondemneres. Meningen var å senke fartøyet. Folk i Herøy, med tyskeren Frank Stephan i spissen, var lite begeistret for senkningsplanene og talte for å bevare fartøyet. En stiftelse ble opprettet. De skulle ta vare på båten, men da dette ble vanskelig overtok Arnfinn Karlsen i Tjørvåg. Karlsen hadde sittet i stiftelsens styre og hadde eget verksted. Han ønsket å beholde båten på sjøen, snarere enn å ta den på land, som hadde vært den opprinnelige planen. Restaureringen tok i første omgang sikte på å berge båten, uten enn at det ble fastslått et bestemt tilbakeføringstidspunkt. Store deler av båten hadde i alle tilfeller sett bedre dager og kunne ikke gjenbrukes. Deler fra 23 andre båter, i hovedsak fra Herøy, gikk med i restaureringen av Erkna.
I dag er det, til tross for flere ombygginger, mye av 1907-fartøyet igjen i skroget. Båtens ombygginger har i stor grad vært gjort for å tilpasses nye tider samt forskjellige fiske- og fangstformer, eller fraktefarten på fisk, som båten jo også ble brukt til. Det vi vet om innredningen om bord er langt mer begrenset enn det vi vet om utvendige konstruksjoner, og det gjelder for bortimot hele fartøyets historie.
Generelt sett kan man videre si at det har vært mer kunnskap å finne om båten desto senere i tid man kommer. Krigsårene 1940-1945 skiller seg ut - dette er en relativt kort periode som er ganske grundig dokumentert.
Lenke til den fullstendige teknisk-historiske rapporten om MK Erkna finner du her


